
,,ZNÍŽENÁ CENA ,,Odstúpenie zabehnutej kaviarne s terasou
Trnava
- Rozloha 246 m2
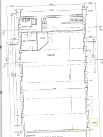
Ponúkame Vám na predaj výrobnú halu s priľahlým pozemkom o celkovej výmere 1 114 m² + zatavaná plocha objektu je 352 m².
Dispozícia a využitie:
• výrobné priestory vhodné na dielňu, ľahkú výrobu alebo skladovanie (v minulosti využívané na sústružnícke stroje)
• objekt je vykurovaný
• sociálne zázemie priamo v hale – toalety, sprchy, šatne
• kancelárske a administratívne priestory
Technické a prevádzkové výhody:
• hala sa nachádza v stráženom areáli s rampou a vrátnicou – bezpečie a kontrolovaný vstup
• na pozemku sa nachádza trafostanica – možnosť širokého využitia priemyselných priestorov aj pre energeticky náročnejšie prevádzky
Lokalita:
Nehnuteľnosť sa nachádza v katastrálnom území Prejta – Dubnica nad Váhom. Lokalita ponúka dobrú dostupnosť a zázemie pre podnikateľské aktivity.
Cena: Informácie o cene Vám radi poskytneme v realitnej kancelárii.
⸻
👉 Táto nehnuteľnosť je ideálnou voľbou pre firmy hľadajúce kombináciu výrobných priestorov, administratívy a bezpečného areálu so širokými možnosťami využitia.
Interné ID: | 00051 |
---|---|
Mestská časť: | Prejta |
Obec: | Dubnica nad Váhom |
Okres: | Ilava |
Kraj: | Trenčiansky kraj |
Druh: | Priestory |
Typ: | Predaj |
Typ objektu: | Priestor pre výrobu |