Používame cookies

Súbory cookie a ďalšie technológie sledovania používame na zlepšenie vášho zážitku z prehliadania našich webových stránok, na to, aby sme vám zobrazovali prispôsobený obsah a cielené reklamy, na analýzu návštevnosti našich webových stránok a na pochopenie toho, odkiaľ naši návštevníci prichádzajú. Viac info

Na predaj meštiansky dom s polyfunkciou v historickom centre Trnavy

Popis nehnuteľnosti

Zdieľať na Facebooku

Ponúkame vám jedinečnú investičnú príležitosť – priestranný meštiansky dom situovaný priamo v centre mesta, ktorý kombinuje históriu s potenciálom moderného bývania.

 

Charakteristika objektu:

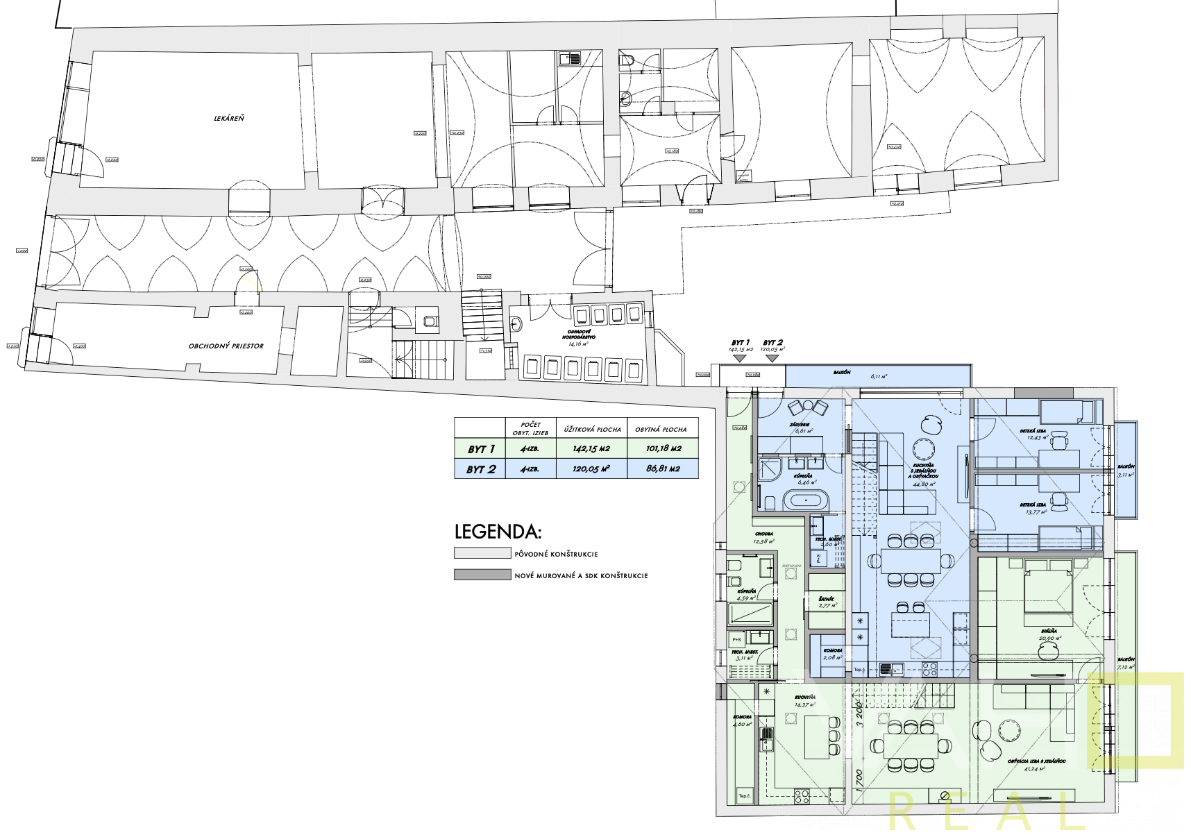
    •    polyfunkčný dom s aktuálnym využitím na služby 

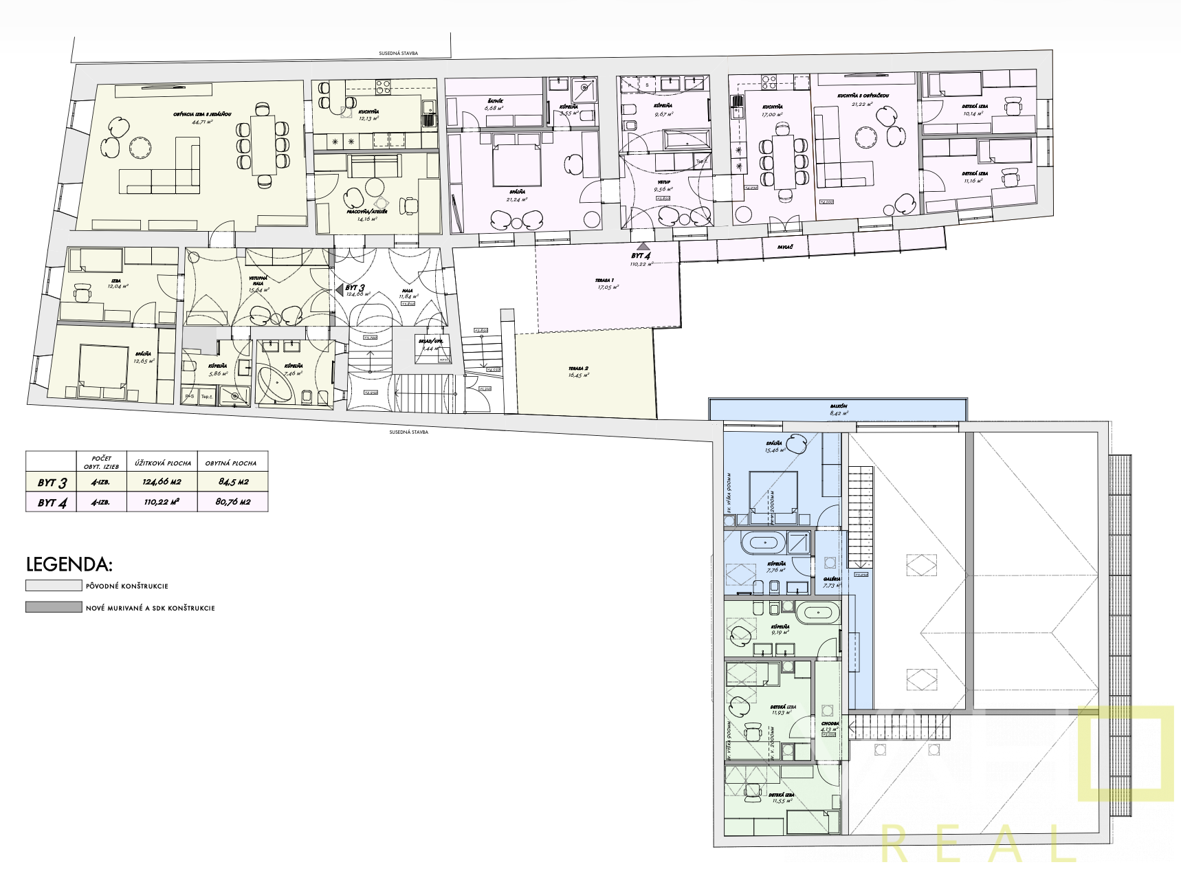
    •    projekt schválený na prestavbu na 6  bytových jednotiek

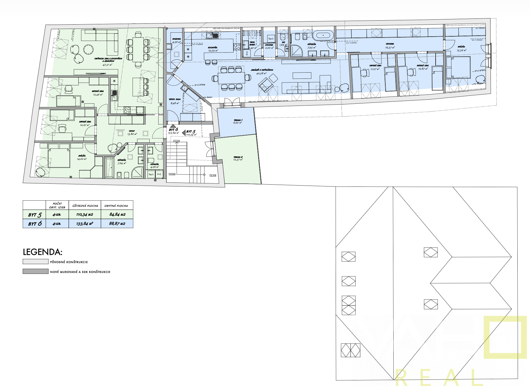
    •    dispozícia  4-izbové byty s rozlohou 110 – 134 m²

    •    možnosť využitia podkrovných priestorov s terasami a presvetlením strešnými oknami

    •    zachovaná časť služieb, ktorá prináša stabilný príjem

 

Technické riešenie a komfort:

    •    novovzniknuté byty budú vykurované tepelnými čerpadlami

    •    každý byt bude mať samostatné meranie energií

    •    parkovanie priamo na vlastnom pozemku (pre cca  10 áut)

    •    vnútorný dvor so zeleňou a oddychovou zónou

 

Výhody nehnuteľnosti:

    •    atraktívna poloha v samotnom historickom centre mesta

    •    možnosť kombinovať rezidenčné a komerčné využitie

    •    vysoký investičný potenciál – vhodné na bývanie, prenájom aj podnikanie

    •    projekt prestavby je v súlade s územným plánom mesta

    •    právoplatné stavebné povolenie    

 

Táto nehnuteľnosť predstavuje jedinečnú šancu vlastniť dom s históriou a zároveň s budúcnosťou – spojenie tradície, centra mesta a moderného bývania s istým výnosom.

 

📞 Pre viac informácií a dohodnutie obhliadky nás kontaktujte.

Vlastnosti

Status:
aktívne
Vlastníctvo:
osobné
Úžitková plocha:
800 m2
Stav:
Vo fáze projektovania
Typ budovy:
tehla
Pivnica:
áno
Inžinierske siete:
áno
Voda:
áno
Elektrika:
áno
Plyn:
áno
Kanalizácia:
áno
Info o cene v RK
Interné ID: 000036
Ulica: Štefánikova
Mestská časť: Centrum a okolie
Obec: Trnava
Okres: Trnava
Kraj: Trnavský kraj
Druh: Objekty
Typ: Predaj
Typ objektu: Polyfunkčná budova

Vahalík Tomáš

  • Slovensky
  • Česky

Radi Vám poradíme

Podobné nehnuteľnosti