
Dvojpodlažný rodinný dom s bazénom a garážou na ulici Leoša Janáčka v Trnave
Trnava
- Izby 5
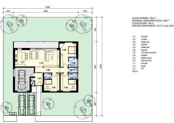
- Pozemok 548 m2
- Inž. siete áno
- Kúpelne 2
🔥 ŠPECIÁLNA AKCIA – len do 30. 10. 2025!
Teraz môžete získať svoj vysnívaný dom už za 459 000 €.
Dokončite si svoj vysnívaný dom podľa seba – s nadštandardom v cene!
V zastúpení realitnej kancelárie VAHOreal vám predstavujeme unikátny developerský projekt v obci Biely Kostol , ktorý prináša 10 samostatne stojacich rodinných domov na novovybudovanej ulici s kompletnou infraštruktúrou. Lokalita len 2 minúty od Trnavy ponúka pokojné bývanie s výbornou dostupnosťou.
Každý dom je aktuálne v štádiu holodomu – ideálne riešenie pre tých, ktorí túžia po bývaní presne podľa svojich predstáv, no bez starostí s výstavbou.
✨ Aby ste si vedeli lepšie predstaviť potenciál týchto luxusných domov, pripravili sme pre vás ilustračné vizualizácie interiéru. Tie ukazujú, ako môže váš dom po zariadení vyzerať – momentálne je však dom v štádiu holodomu. Vizualizácie majú inšpiračný charakter a pomôžu vám lepšie si predstaviť atmosféru vášho budúceho domova.
💎 Kľúčové vlastnosti domu:
🌿 Pozemok a exteriér:
📍 Lokalita – Biely Kostol:
Obec Biely Kostol ponúka výbornú občiansku vybavenosť – nová základná škola, materská škola, potraviny, reštaurácie, lekár, detské ihriská a výborné dopravné napojenie do Trnavy (len 2 minúty autom). Tiché prostredie obce je ideálne pre rodiny a pre tých ktrorí hľadajú pokojné bývanie v blízkosti mesta.
💰 Cena: 459 000 €
Domy sa predávajú skolaudované a pripravené na okamžité dokončenie podľa vášho vkusu, štýlu a potrieb. S dokončením vám radi pomôžeme!
Ak si vyberiete svoj nový domov v tomto projekte, radi vám zabezpečíme spoľahlivých a overených odborníkov – od stolárov, podlahárov, obkladačov až po interiérového dizajnéra. Môžeme vám dotiahnuť každý detail presne podľa vašich predstáv, aby ste sa mohli čo najskôr nasťahovať do vysnívaného domova bez zbytočných starostí.
📞 Zaujal vás projekt?
Radi vám poskytneme viac informácií a dohodneme si osobnú obhliadku.
👉 Kontaktujte nás ešte dnes.
VAHOreal – exkluzívna predajca projektu.
Interné ID: | VT00017 |
---|---|
Obec: | Biely Kostol |
Okres: | Trnava |
Kraj: | Trnavský kraj |
Druh: | Domy |
Typ: | Predaj |
Typ domu: | Rodinný dom |